Hiša - MALINSKA - 620.000 EUR
| Lokacija | MALINSKA, KRK |
| Cena € | 620.000 |
| Površina | 156 m2 |
| Število sob | 4 |
| Površina parcele | 200 m2 |
| Število kopalnic | 4 |
| Bližina prevoza | DA |
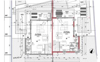
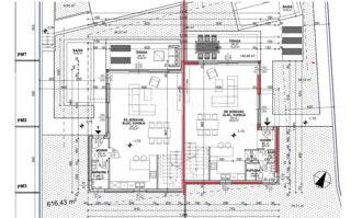
Prodamo novozgrajeno hišo dvojček z bazenom in vrtom - Malinska, otok Krk Nepremičnina obsega 156 m2 in se razprostira na pritličju in nadstropju. V pritličju je predsoba, garderoba, kopalnica in velik odprt prostor, ki združuje dnevno sobo, kuhinjo in jedilnico ter pokrita terasa - 15 m2. V prvem nadstropju je hodnik, garderoba, tri spalnice, vsaka s svojo kopalnico in dva balkona. Hiša se prodaja na ključ, z urejenim vrtom z bazenom in dvema parkirnima mestoma. Kvalitetna gradnja s talnim ogrevanjem na sistem toplotne črpalke, PVC stavbno pohištvo z roletami, klima v vseh prostorih. Vselitev je predvidena poleti 2024. DDV vključen v ceno, priložnost!
ID: 1027588