Hiša - KRK - 160.000 EUR
| Lokacija | KRK, KRK |
| Cena € | 160.000 |
| Površina | 140 m2 |
| Število sob | 5 |
| Površina parcele | 100 m2 |
| Število kopalnic | 2 |
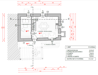
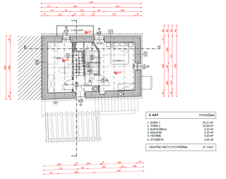
EKSKLUZIVNO V PONUDBI EURO IMMOBILIEN! Kamnita hiša za popolno prenovo s čudovitim pogledom na morje! V majhnem, mirnem kraju v bližini mesta Krk se prodaja kamnita hiša, zadnja v vrsti. Zgrajena je bila pred letom 1968, potrebuje popolno prenovo. Obstaja glavni načrt za rekonstrukcijo. Po načrtu bi bilo v pritličju spalnica, kopalnica, dnevna soba in majhna kuhinja. Notranje stopnice vodijo v prvo nadstropje, vendar je v to nadstropje tudi neposreden vhod od zunaj preko terase. V prvem nadstropju so predvidene udobna kuhinja, jedilnica in dnevna soba z dostopom do terase. Notranje stopnice vodijo v drugo nadstropje, ki ima dve spalnici in še eno kopalnico. Dvorišče je manjše, vendar ima dostop z asfaltne ceste in na njem bo možno parkiranje. Od mesta Krk je oddaljena le deset kilometrov, od prve plaže pa le 5 minut vožnje z avtomobilom. Za vse informacije ali dogovor o ogledu smo dosegljivi na številki +385994440660 ali v naši poslovalnici v Malinski, Dubašljanska 111. Provizija agencije za kupca iznosi 3% + PDV i plaća se u slučaju kupovine nekretnine kod zaključenja kupoprodajnog Ugovora.
ID: 1239795