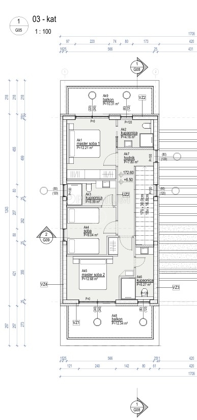
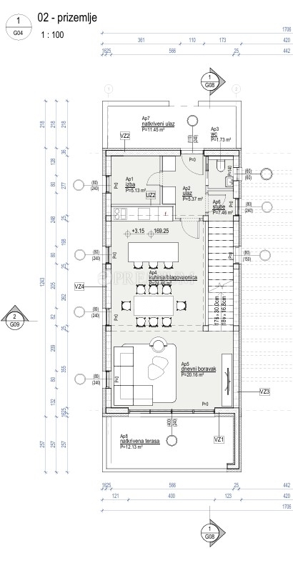
Hiša v mestu VRBNIK cena 720.000 EUR s površino 176 m2

Vrbnik okolica – novogradnja z bazenom!