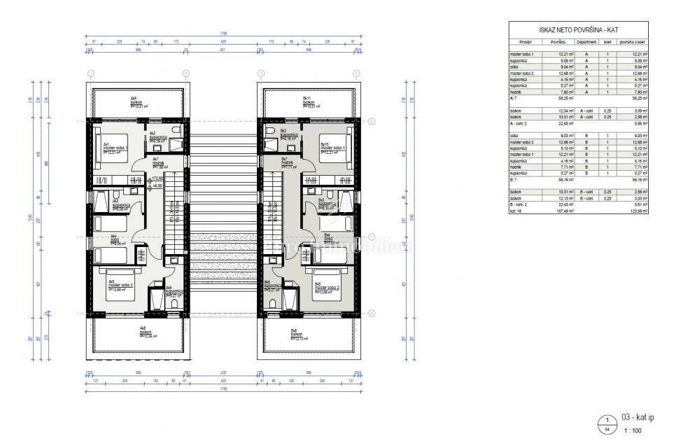
Hiša v mestu VRBNIK cena 680.000 EUR s površino 176 m2

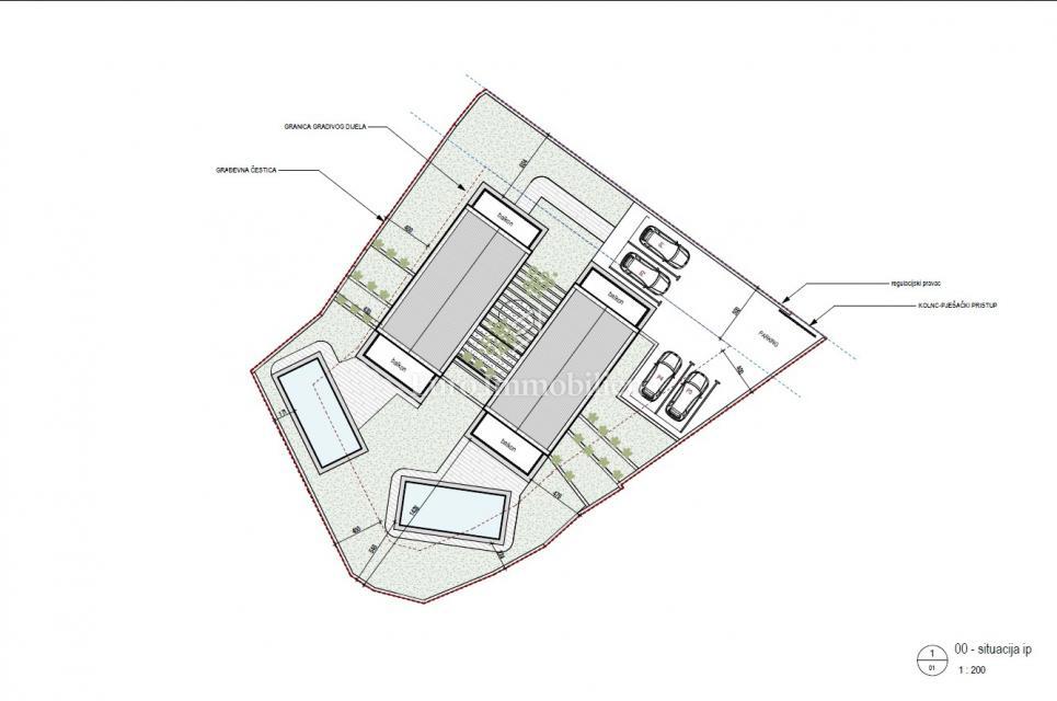
Vrbnik, okolica - hiša z bazenom in wellness centrom