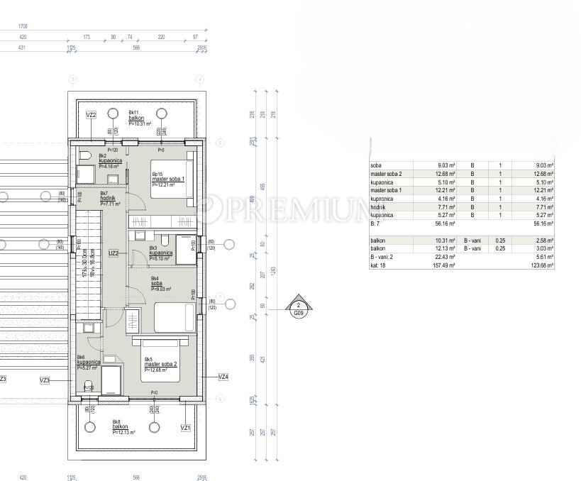
Hiša v mestu VRBNIK cena 680.000 EUR s površino 176 m2

Vrbnik okolica – moderna hiša, mirna lokacija!