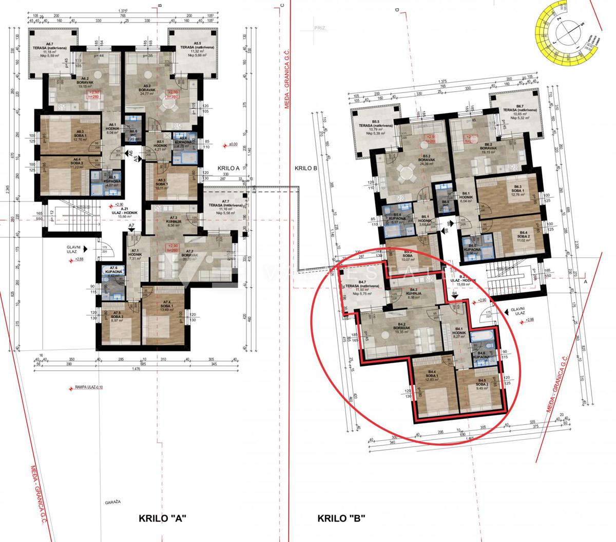
Stanovanje v mestu ŠILO cena 425.000 EUR s površino 71 m2

LUKSUZNI APARTMA V PRVI VRSTI DO MORJA