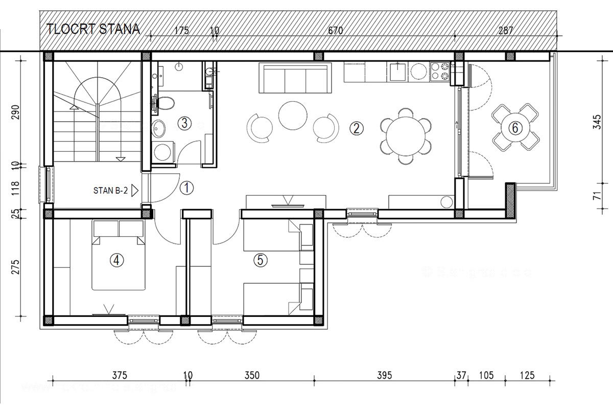
Stanovanje v mestu ŠILO cena 270.000 EUR s površino 63 m2

Silo, novogradnja, stanovanje v 2. nadstropju s pogledom na morje