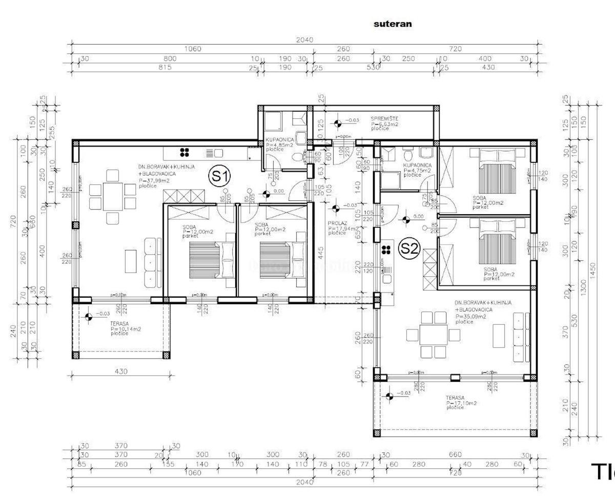
Stanovanje v mestu OMIŠALJ cena 580.000 EUR s površino 92 m2

Apartma s pogledom na Kvarnerski zaliv v Omišlju