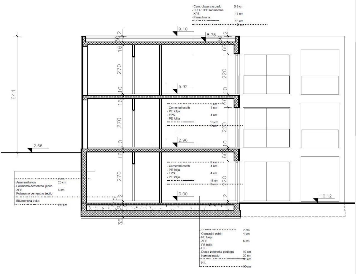
Stanovanje v mestu OMIŠALJ cena 580.000 EUR s površino 92 m2

Omišalj - apartma s pogledom na Kvarnerski zaliv