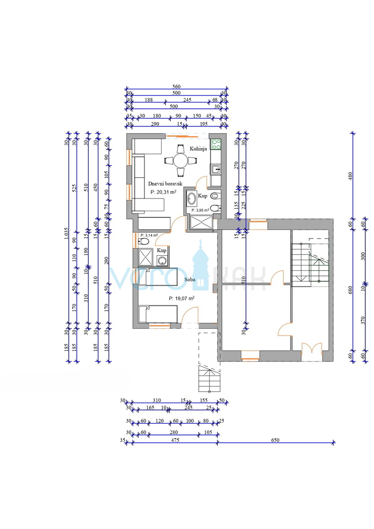
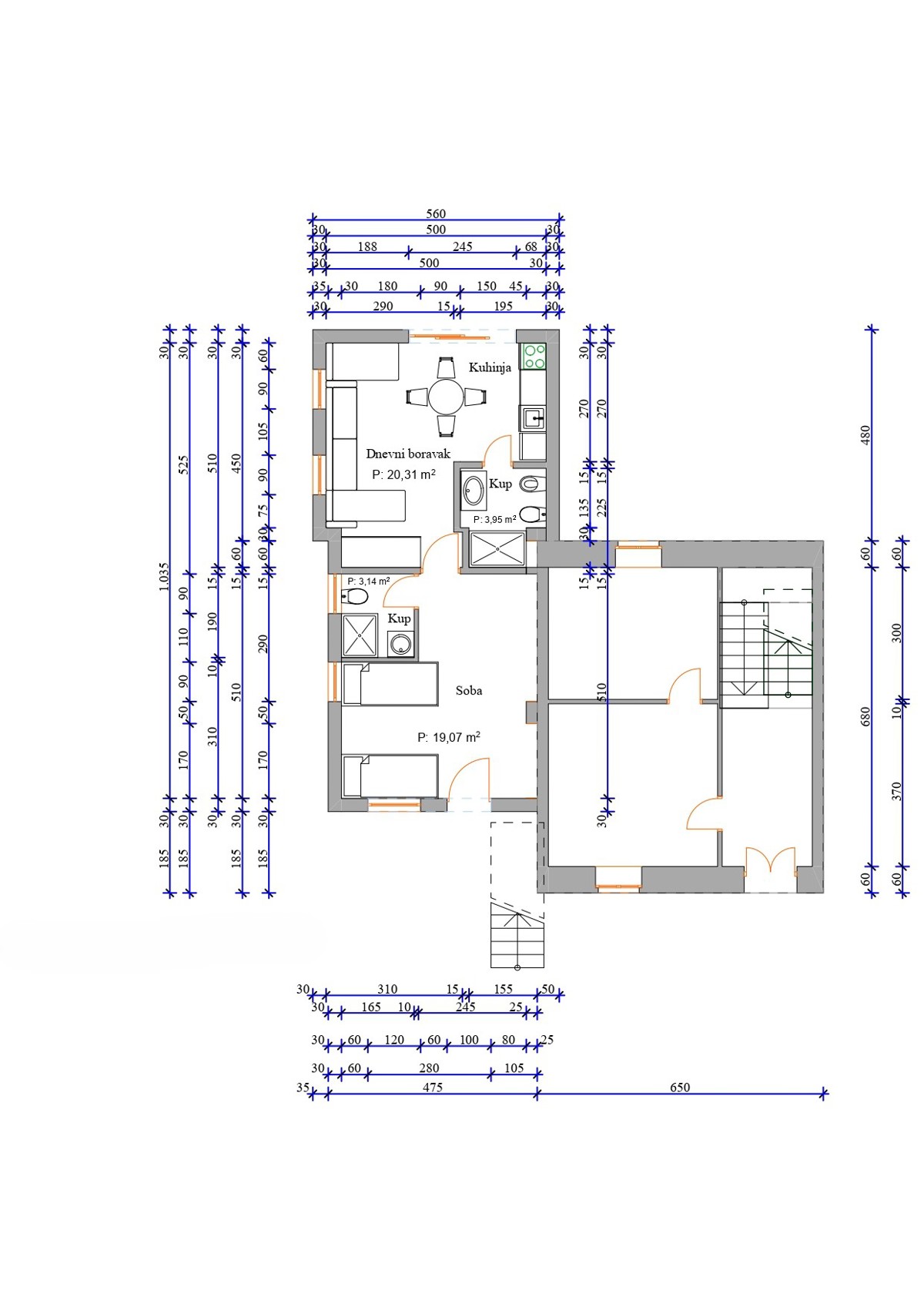
Hiša v mestu OMIŠALJ cena 359.000 EUR s površino 130 m2