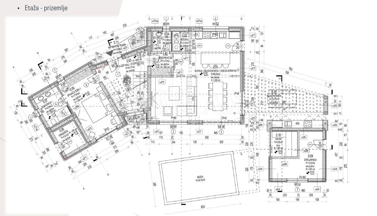
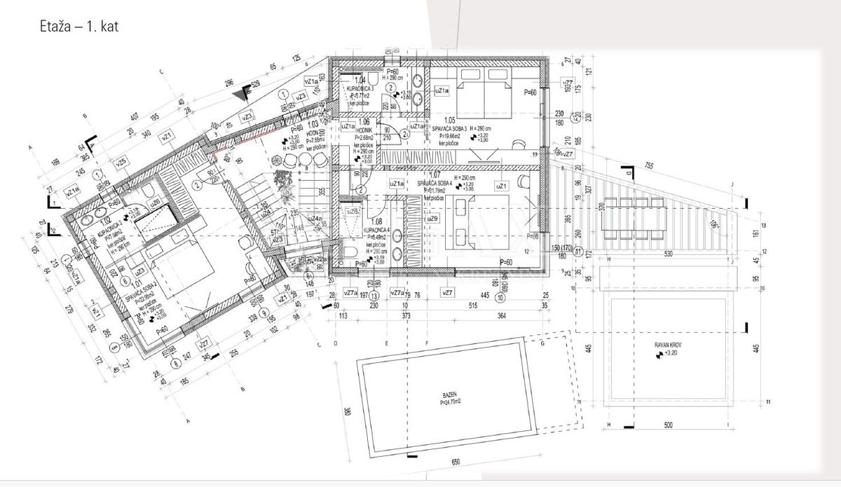
Hiša v mestu MURAJ cena 1.100.000 EUR s površino 219 m2

Otok Krk, Muraj - luksuzno opremljena vila z bazenom