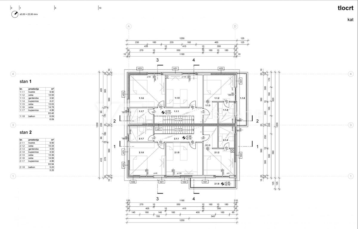
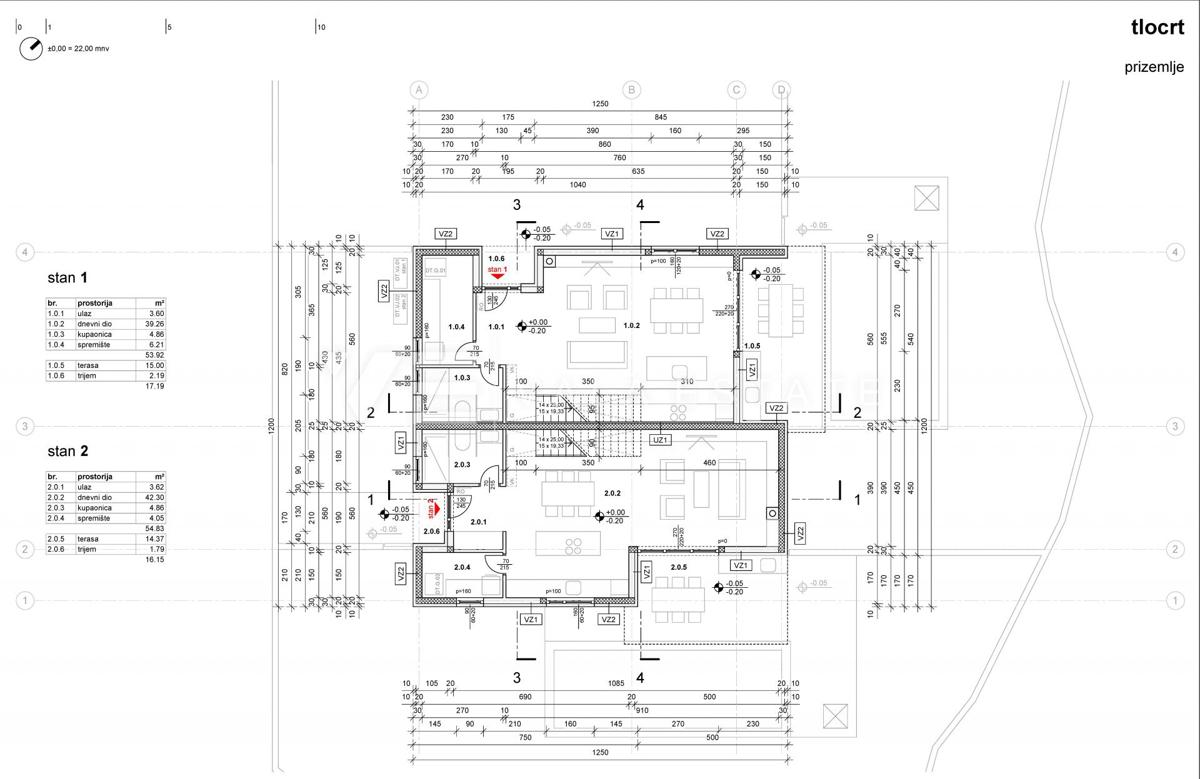
Hiša v mestu MALINSKA cena 820.000 EUR s površino 140 m2

NOVA DVOJČEK HIŠA Z BAZENOM SAMO 200 M DO MORJA