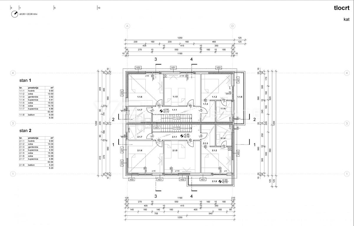
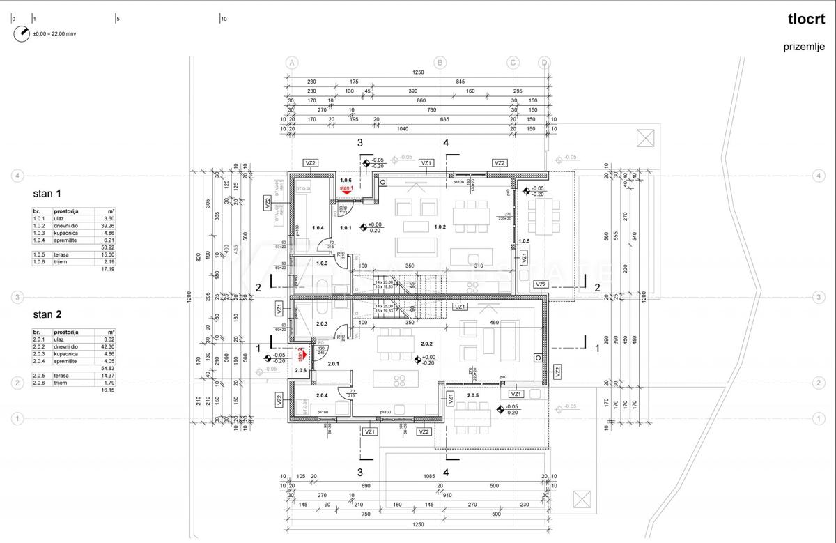
Hiša v mestu MALINSKA cena 780.000 EUR s površino 130 m2

MODERNA POL-SAMOSTOJNA HIŠA Z BAZENOM SAMO 200 M DO MORJA