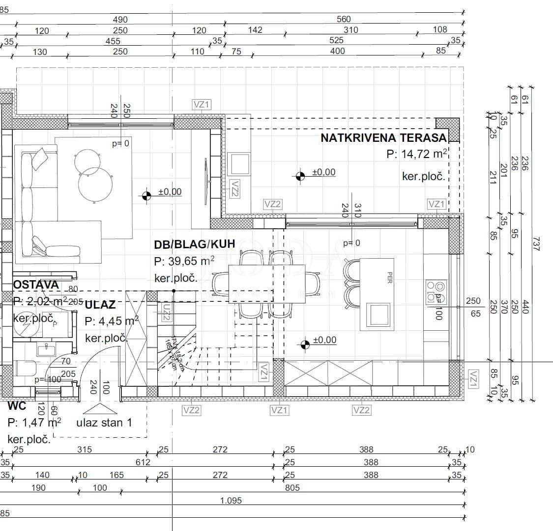
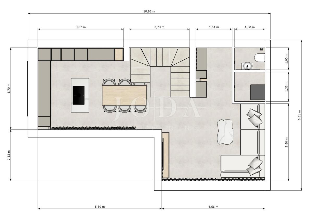
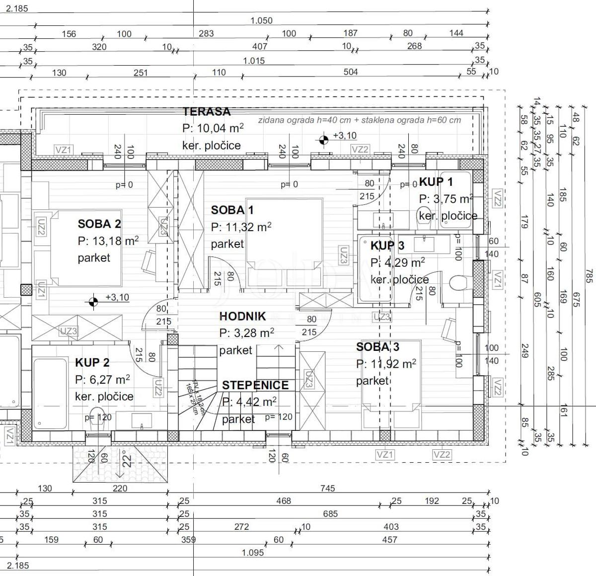
Hiša v mestu MALINSKA cena 620.000 EUR s površino 130 m2

Malinska - dvojček s pogledom na morje