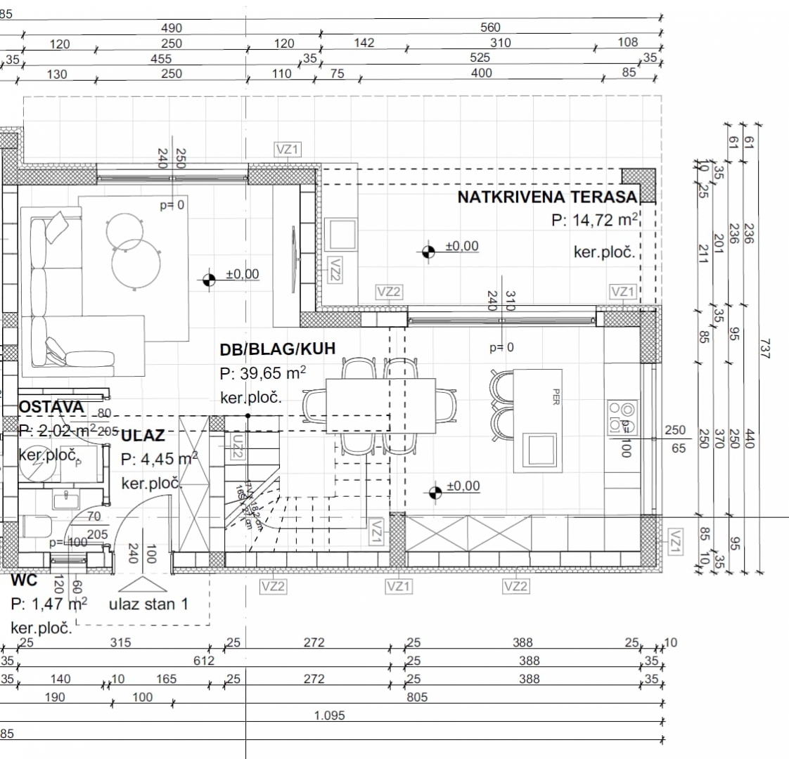
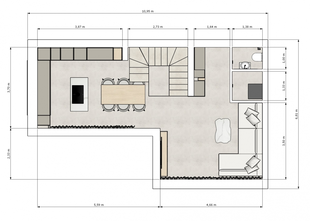
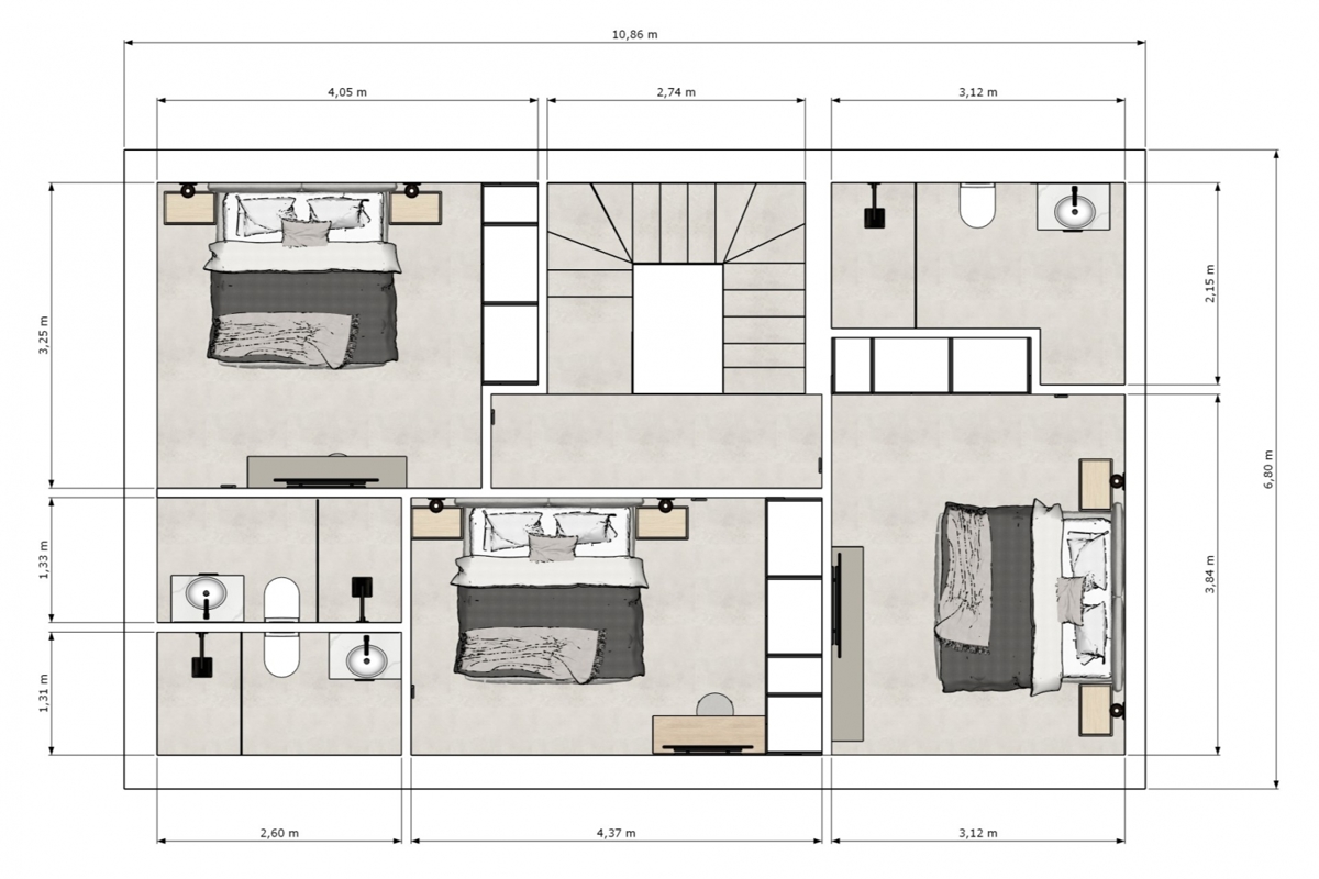
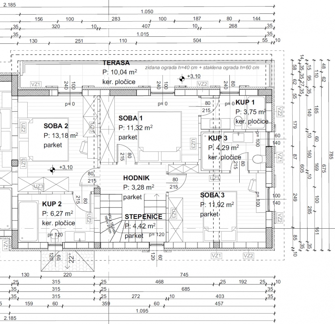
Hiša v mestu MALINSKA cena 620.000 EUR s površino 130 m2

Območje Malinske - Dvojček hiše z ogrevanim bazenom