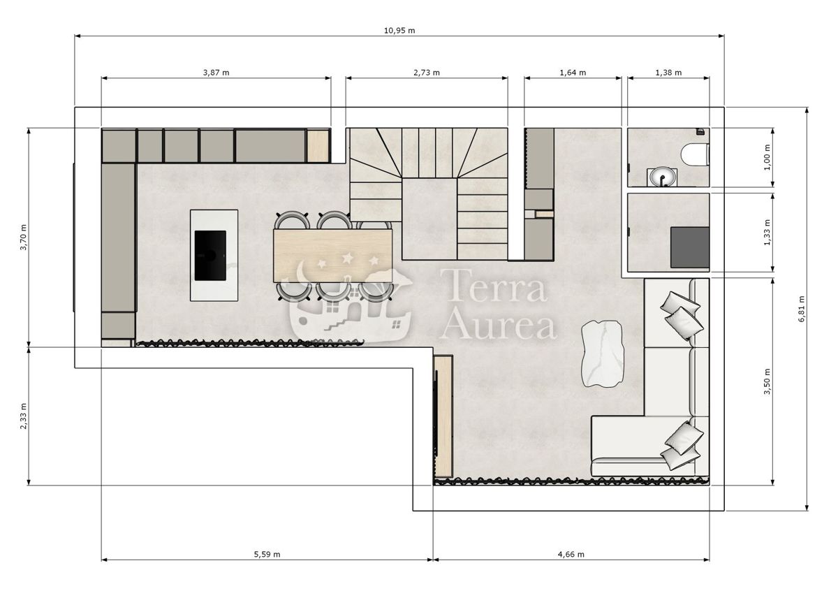
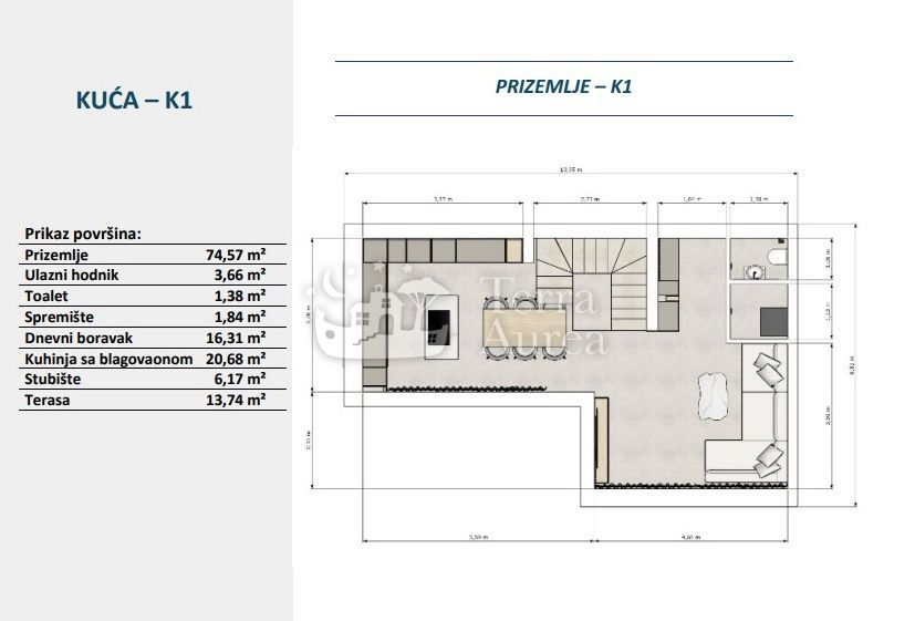
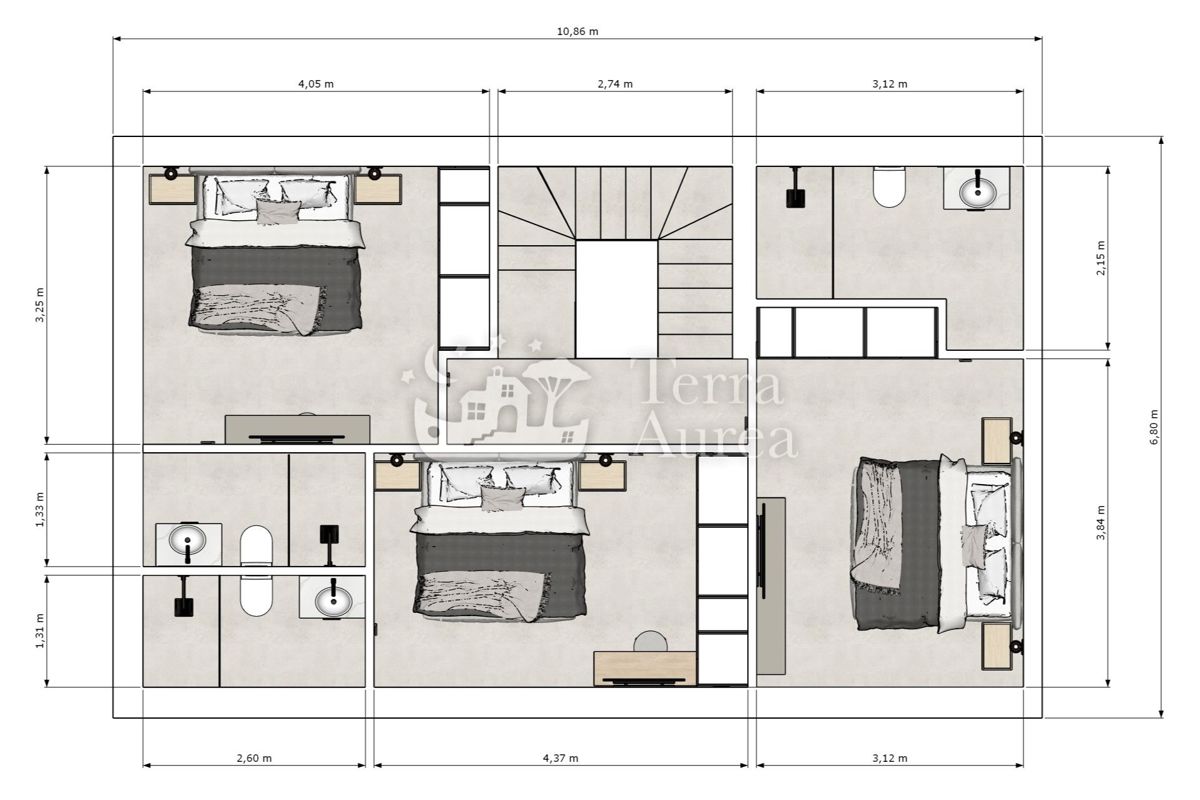
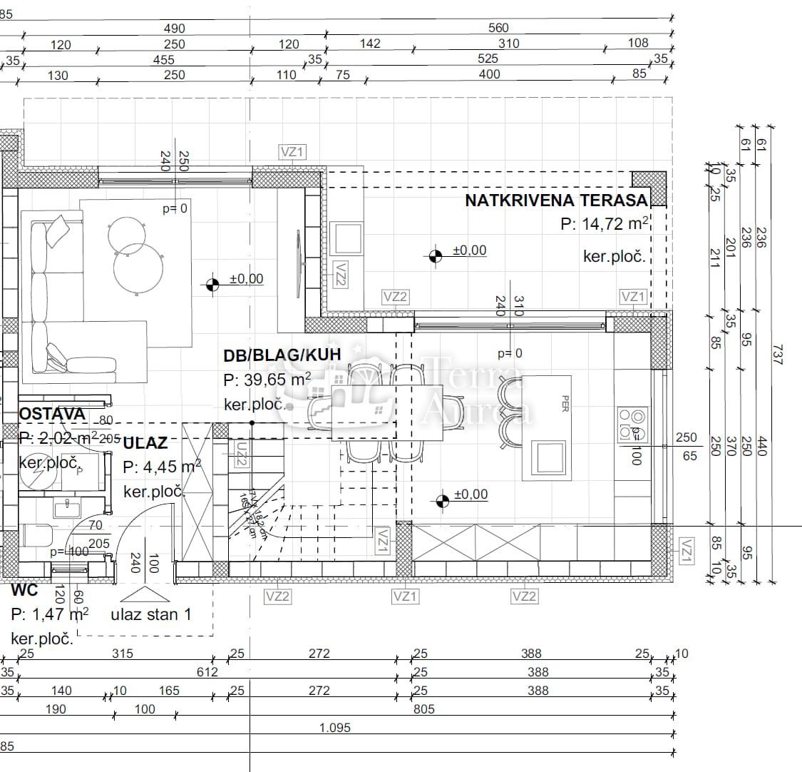
Hiša v mestu MALINSKA cena 620.000 EUR s površino 130 m2

Hiša Malinska, Malinska-Dubašnica, 130m2