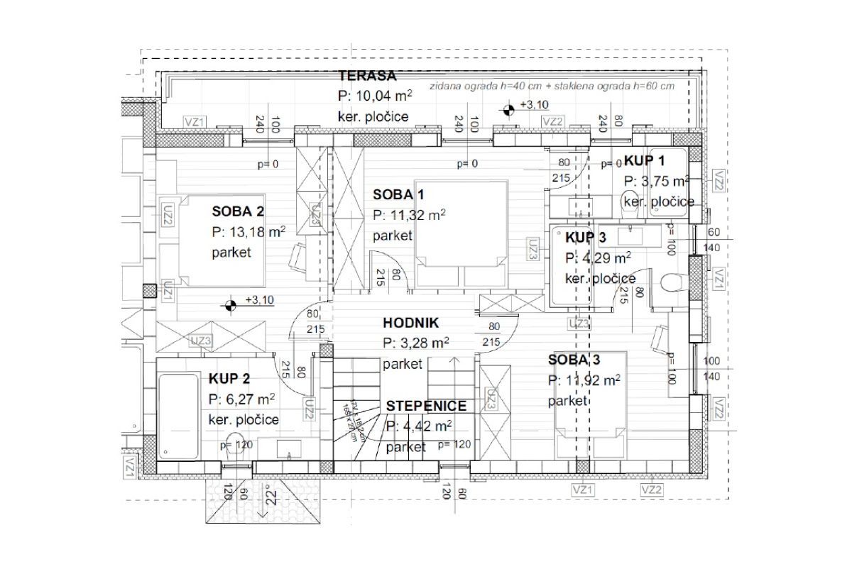
Hiša v mestu MALINSKA cena 620.000 EUR s površino 148 m2

Hiša, prodaja, Malinska, Hrvatska, 148 m2, 620.000,00 EUR