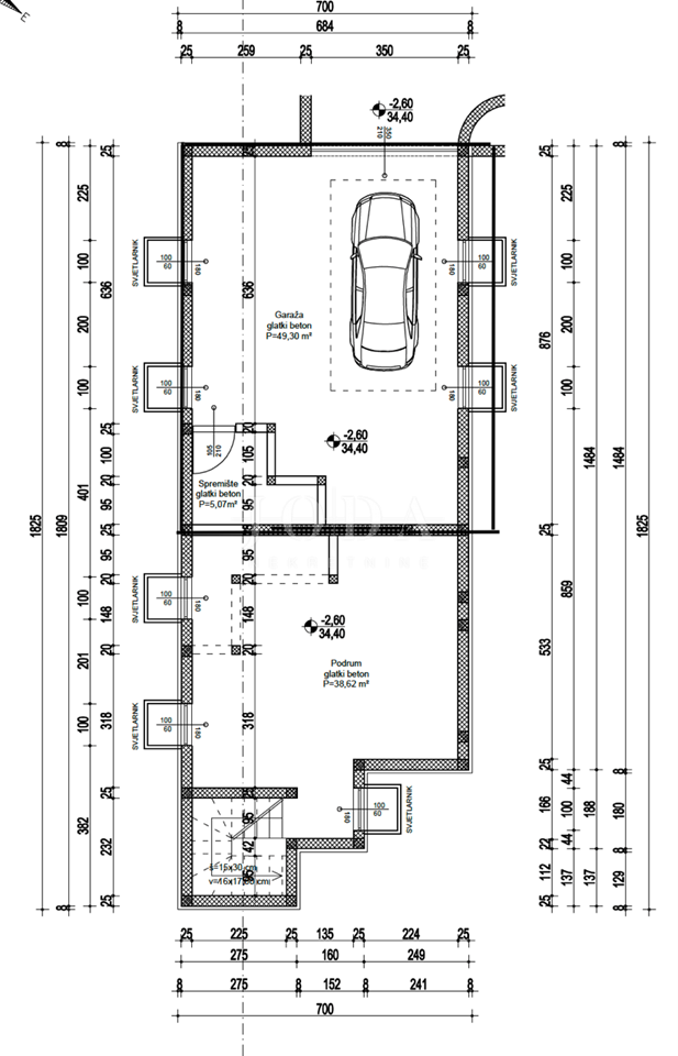
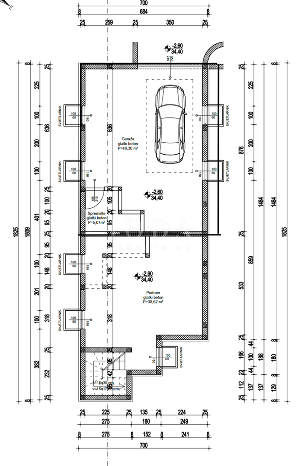
Hiša v mestu MALINSKA cena 530.000 EUR s površino 156 m2