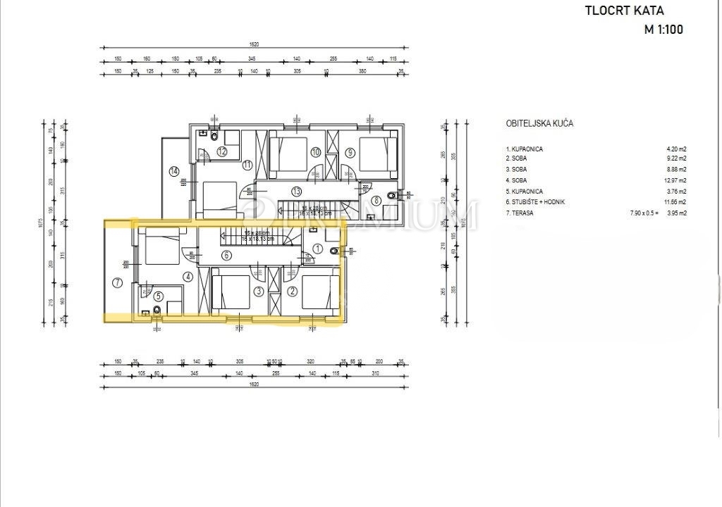
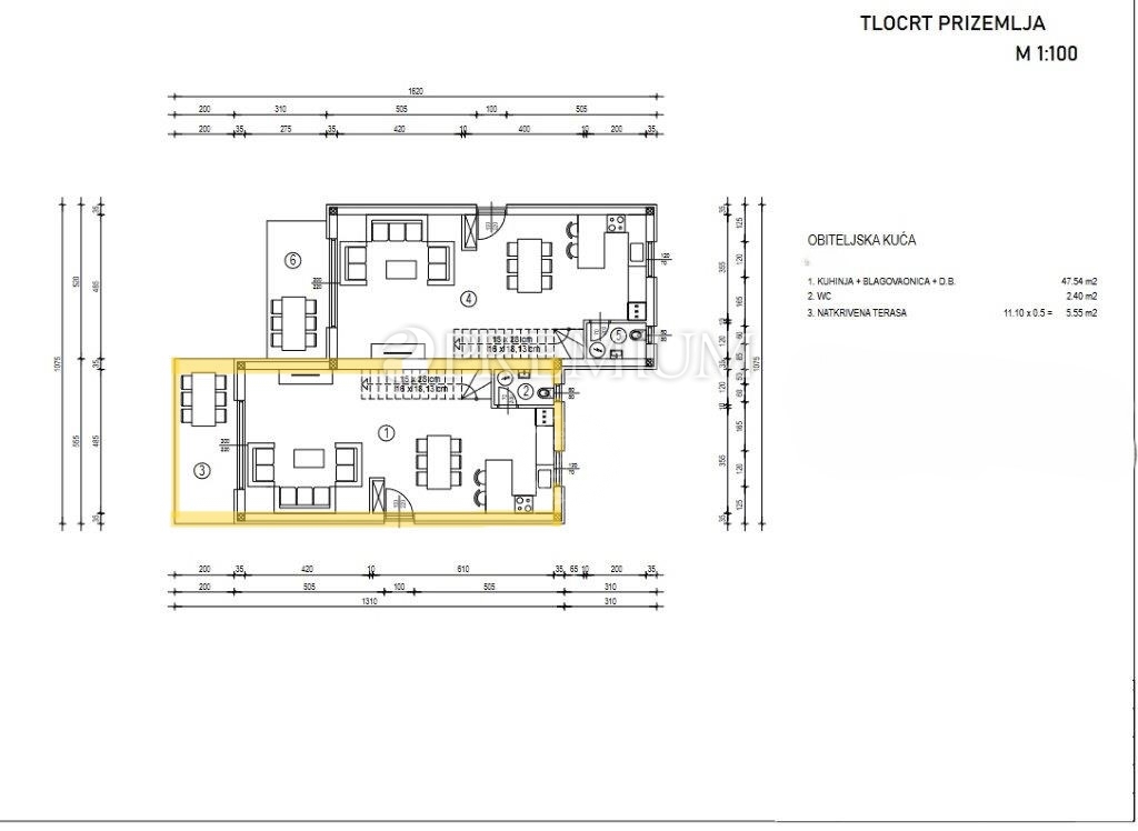
Hiša v mestu MALINSKA cena 490.000 EUR s površino 110 m2

Malinska moderna dvojna hiša novogradnja!