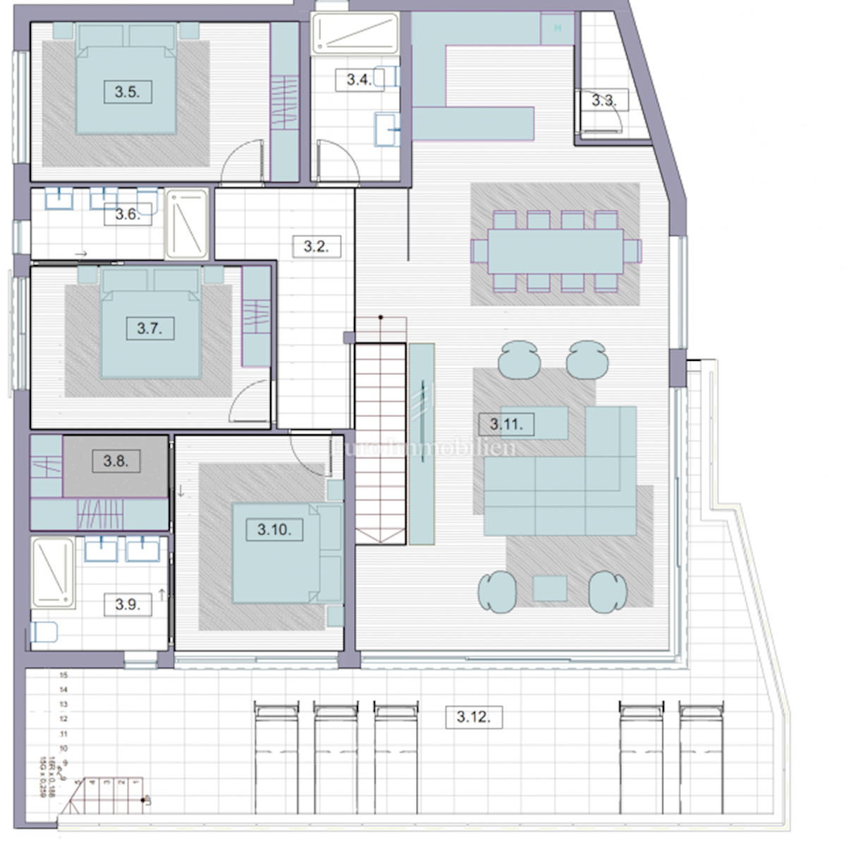
Stanovanje v mestu KRK cena 950.000 EUR s površino 162 m2

Luksuzno stanovanje z bazenom in strešno teraso