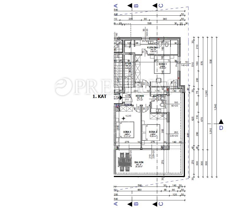
Stanovanje v mestu KRK cena 780.000 EUR s površino 167 m2

Krk, novogradnja, apartma s strešno teraso!