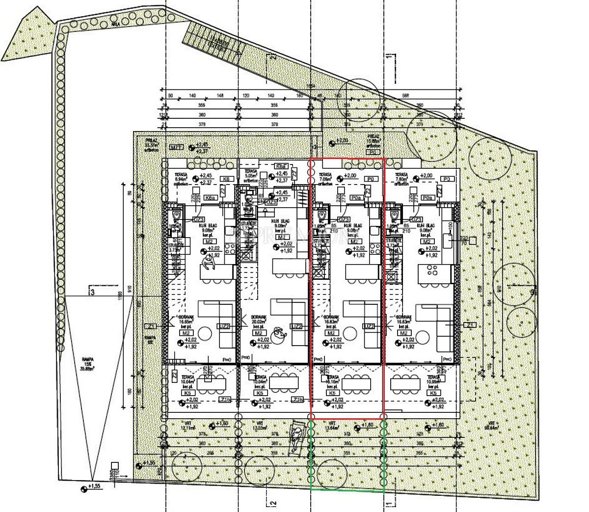
Stanovanje v mestu KRK cena 525.000 EUR s površino 111 m2

Krk, impresivno stanovanje v novi stavbi, 450 m od morja!