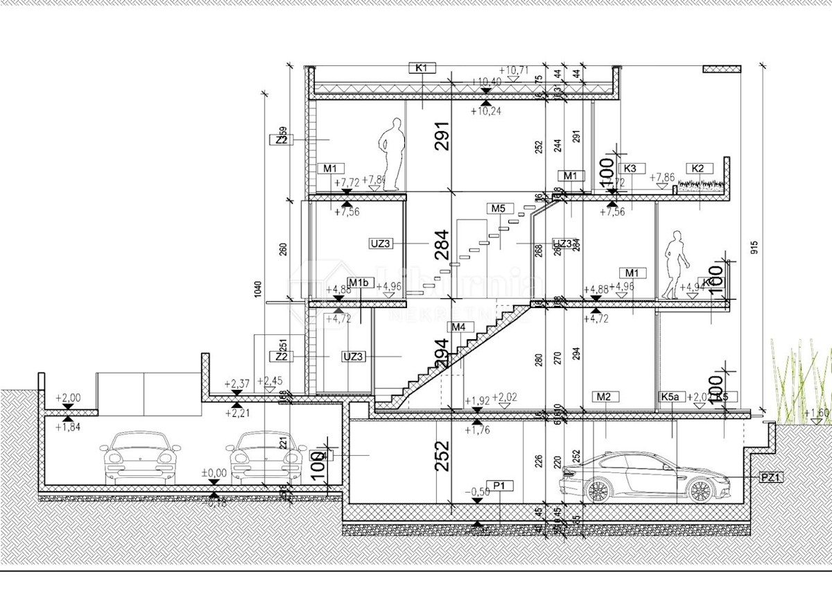
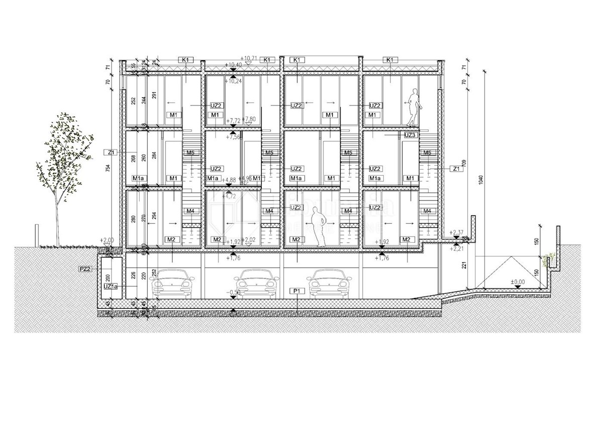
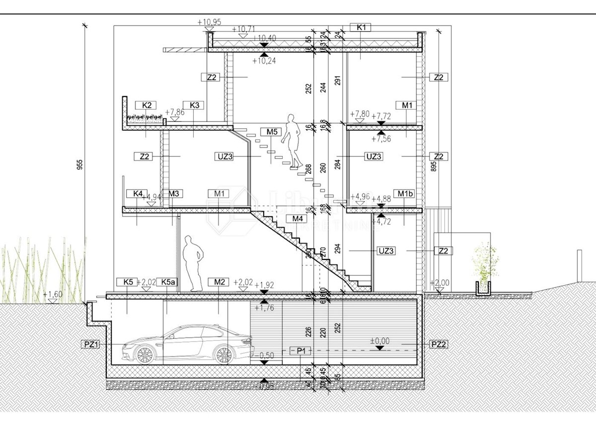
Stanovanje v mestu KRK cena 495.000 EUR s površino 89 m2

Mesto Krk. Luksuzno trinadstropno stanovanje, 300 metrov od morja.