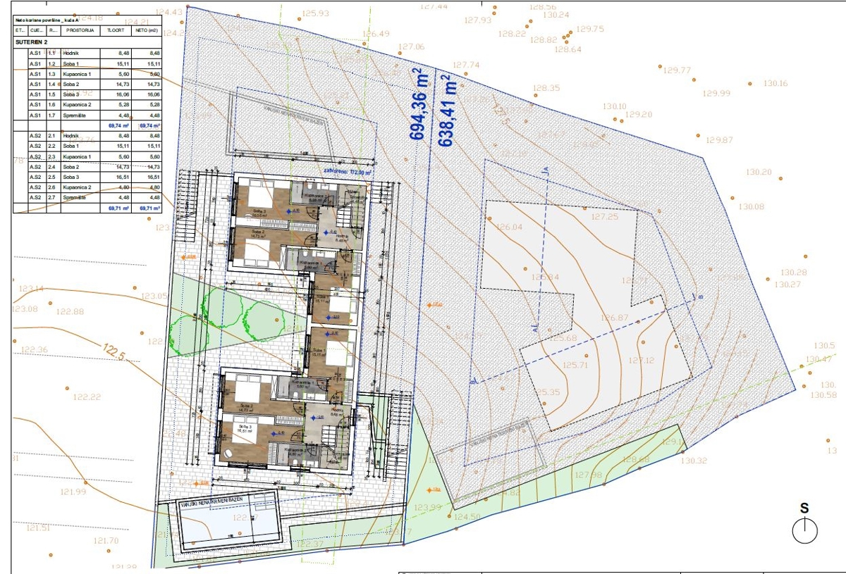
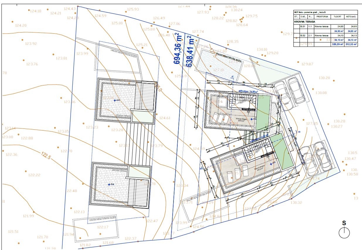
Hiša v mestu KRK cena 600.000 EUR s površino 140 m2

Krk, okolica, novogradnja, moderna hiša z bazenom in razgledom