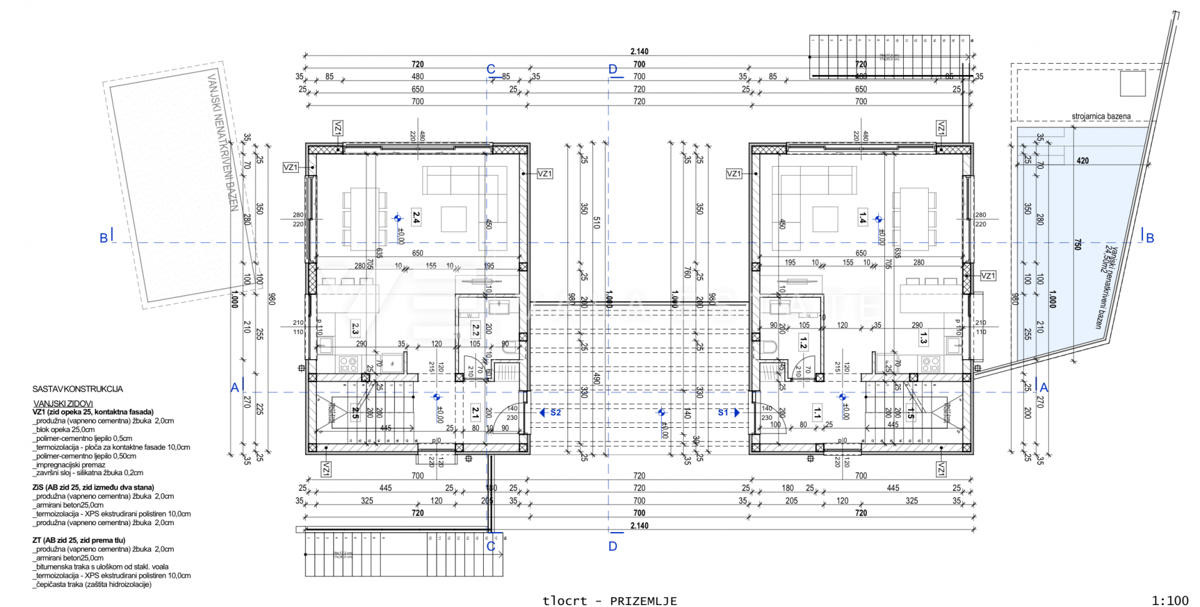
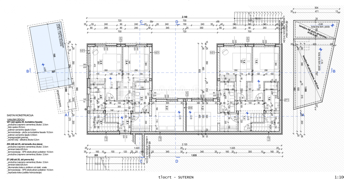
Hiša v mestu KRK cena 599.000 EUR s površino 140 m2

NOVA MODERNA DVOJNA HIŠA Z POGLEDOM NA MORJE