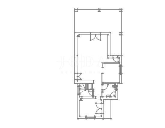
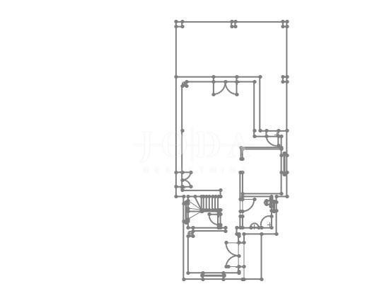
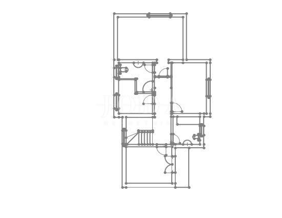
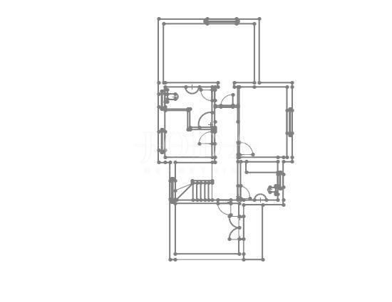
Hiša v mestu DOBRINJ cena 575.000 EUR s površino 250 m2

Samostojna hiša na mirni lokaciji