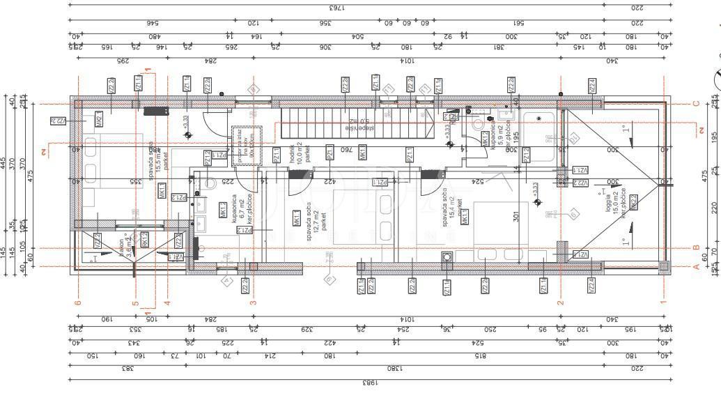
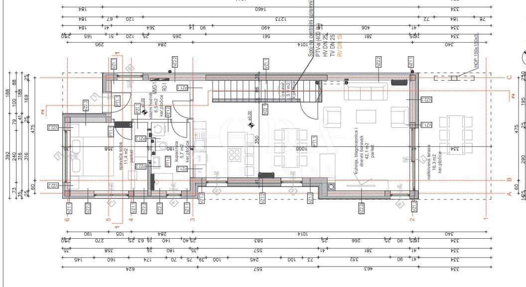
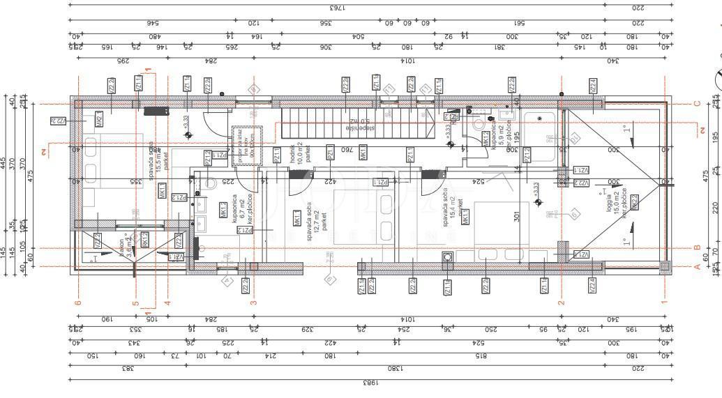
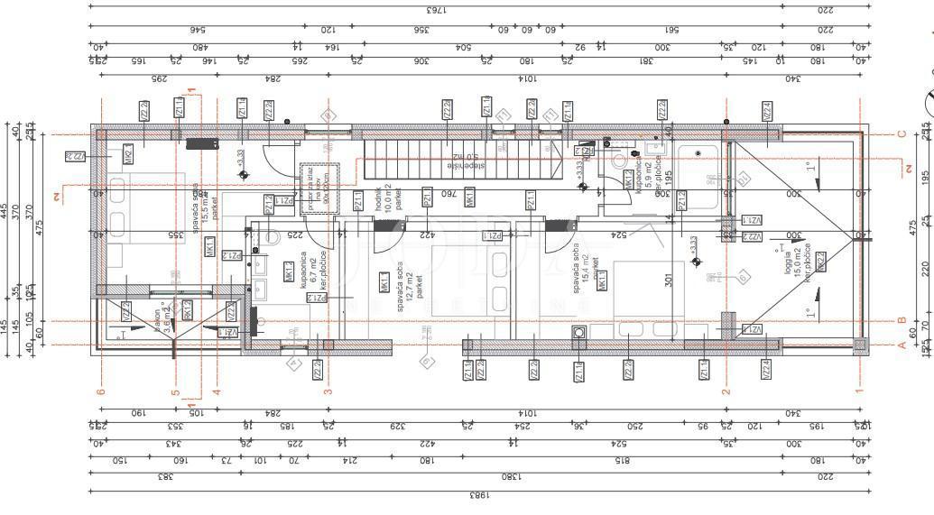
Hiša v mestu BAŠKA cena 955.000 EUR s površino 213 m2

Okolica Baške - samostojna vila z bazenom